+43

Vechtstraat 56 2515 SV Den Haag € 340.000,- k.k.

  • Appartement
  • 5 kamers
  • 4 slaapkamers
  • Bouwjaar 1922
  • 86 m² gebruiksoppervlakte
  • F Energielabel F

Beschrijving

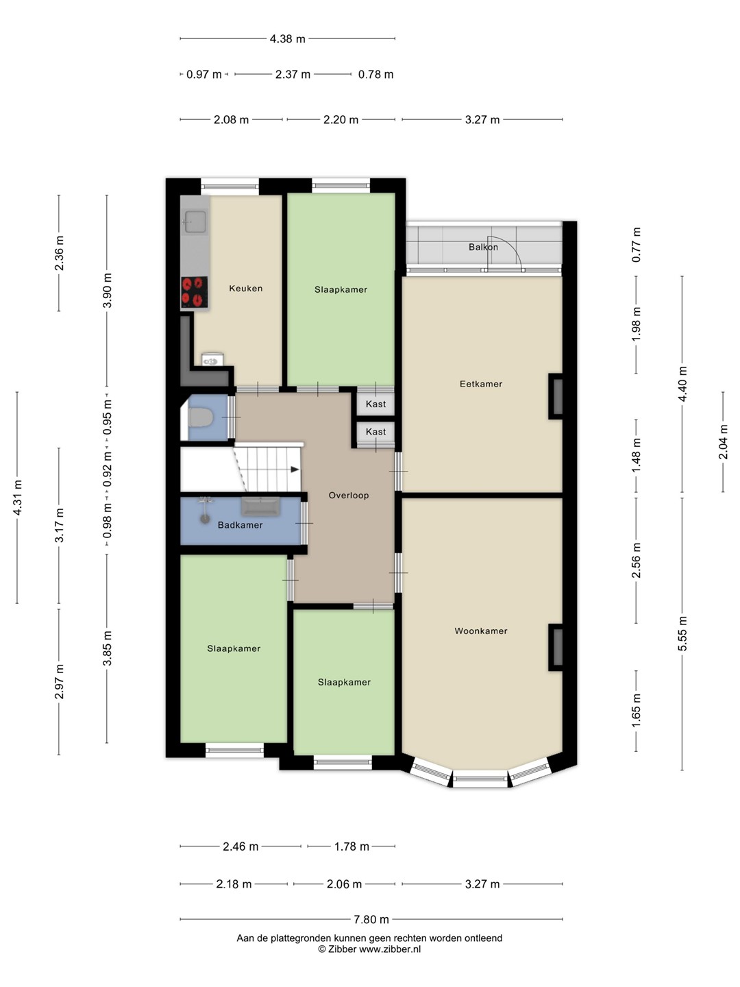
In deze karakteristieke portiekwoning in de Rivierenbuurt vind je iets wat in dit segment zelden voorkomt. Het appartement van 85,80 m² beschikt over maar liefst vijf afzonderlijke kamers. De kamers zijn niet doorgebroken, waardoor iedere ruimte zijn eigen bestemming heeft. Of je nu een groot gezin hebt, thuis werkt, of gewoon niet wil inleveren op kamers: dit is een woning waar je niet snel tegenaan loopt.

De woonkamer aan de voorzijde heeft een erker en biedt ruim uitzicht op straat, terwijl de eetkamer aan de achterzijde aansluit op het balkon. Alle ramen zijn voorzien van kunststof kozijnen met dubbel glas, wat de woning een verzorgde uitstraling geeft met veel daglicht. De hoge plafonds geven de vertrekken extra ruimtegevoel.

De Vechtstraat ligt heel gunstig, de stad ligt om de hoek: Den Haag Centraal en Hollands Spoor zijn op loopafstand, de binnenstad met zijn winkels, markten en horeca zijn te voet bereikbaar. Snelwegen A12, A13 en A4 zijn snel te bereiken. De directe omgeving is bovendien volop in ontwikkeling: de nabijgelegen Pletterijkade wordt heringericht tot een groene, autoluwe fietsstraat met meer bomen en zitgelegenheid langs het water.

Indeling:

Vanaf de straat via het open portiek een trap naar de eerste verdieping. Entree, hal met bergruimte, meterkast en trap naar de tweede verdieping. Overloop met vaste kast en toegang tot alle vertrekken. Ruime woonkamer aan de voorzijde. Eetkamer aan de achterzijde met toegang tot het balkon. Keuken met afzuigkap, kookplaat en vaatwasser. Drie slaapkamers, verdeeld over voor- en achterzijde. Badkamer voorzien van douche en wastafel. Separaat toilet.

Bijzonderheden:

- Woonoppervlakte 85,80 m² (conform NEN2580);
- Eigen grond;
- Volledig voorzien van kunststof kozijnen met dubbel glas;
- VvE actief, bijdrage € 165,- per maand, opstalverzekering aanwezig;
- Ouderdomsclausule van toepassing;
- Asbest- en loodclausule en niet-zelfbewoningsclausule van toepassing;
- Aanvaarding in overleg.

**ENGLISH**

In this characteristic apartment located in the Rivierenbuurt, you will find something that is rarely available in this segment. The apartment of 85.80 m² offers no fewer than five separate rooms. The rooms have not been opened up, allowing each space to maintain its own function. Whether you have a large family, work from home, or simply do not want to compromise on the number of rooms: this is a property that is hard to come by.

The living room at the front features a bay window and offers a wide view of the street, while the dining room at the rear connects to the balcony. All windows are fitted with double glazing, giving the property a well-maintained appearance with plenty of natural light. The high ceilings add an extra sense of space to every room.

Vechtstraat is very conveniently located, with the city just around the corner: Den Haag Central Station and Hollands Spoor are within walking distance, and the city centre with its shops, markets and restaurants can easily be reached on foot. The motorways A12, A13 and A4 are easily accessible. The immediate surroundings are undergoing significant development: the nearby Pletterijkade is being transformed into a green, low-traffic cycling street with more trees and seating areas along the water.

Layout:

From street level, access via the open stairs to the first floor. Entrance, hallway, fuse box and staircase to the second floor. Landing with built-in storage and access to all rooms. Spacious living room at the front. Dining room at the rear with access to the balcony. Kitchen equipped with a hob, extractor hood and dishwasher. Three bedrooms, located at both the front and rear. Bathroom with shower and washbasin. Separate toilet.

Details:
• Living area approx. 85.80 m² (in accordance with NEN2580);
• Freehold property;
• Fully fitted with double glazing;
• Active homeowners’ association (VvE), contribution €165 per month, building insurance in place;
• The standard age, asbestos, lead and non-occupancy clauses apply.

Kaart

Kenmerken

Overdracht

Vraagprijs
€ 340.000,- k.k.
Servicekosten
€ 165,-
Aanvaarding
In overleg
Aangeboden sinds
Woensdag 18 maart 2026
Laatste wijziging
Maandag 11 mei 2026

Bouw

Type object
Appartement, portiekwoning
Woonlaag
3e woonlaag
Soort bouw
Bestaande bouw
Bouwjaar
1922
Dakbedekking
Bitumen
Type dak
Platdak
Isolatievormen
Dubbel glas

Oppervlaktes en inhoud

Woonoppervlakte
86 m²
Woonkameroppervlakte
16 m²
Inhoud
284 m³
Oppervlakte gebouwgebonden buitenruimte
3 m²

Indeling

Aantal bouwlagen
2
Aantal kamers
5 (waarvan 4 slaapkamers)

Locatie

Ligging
Aan rustige weg
In woonwijk
Vrij uitzicht

Energieverbruik

Energielabel
F

CV ketel

CV ketel
Intergas
Warmtebron
Gas
Bouwjaar
2025
Combiketel
Ja

Uitrusting

Warm water
CV-ketel
Verwarmingssysteem
Centrale verwarming
Badkamervoorzieningen
Douche
Wastafel
Wastafelmeubel
Heeft een balkon
Ja
Heeft een open portiek
Ja

Vereniging van Eigenaren

Ingeschreven bij de KvK
Ja
Jaarlijkse vergadering
Ja
Periodieke bijdrage
Ja
Reservefonds
Ja
Onderhoudsverwachting
Ja
Opstal verzekering
Ja

Kadastrale gegevens

Kadastrale aanduiding
's-Gravenhage R 12469
Omvang
Appartementsrecht of complex
Eigendomsituatie
Eigen grond
Indexnummer
4

Media

Video

Virtuele tour

Plattegronden

Virtuele plattegrond